Hillgrove 234
$1,122,099
4
2.5
2
Home width (m)
11.76
Squares (sqs.)
25.17
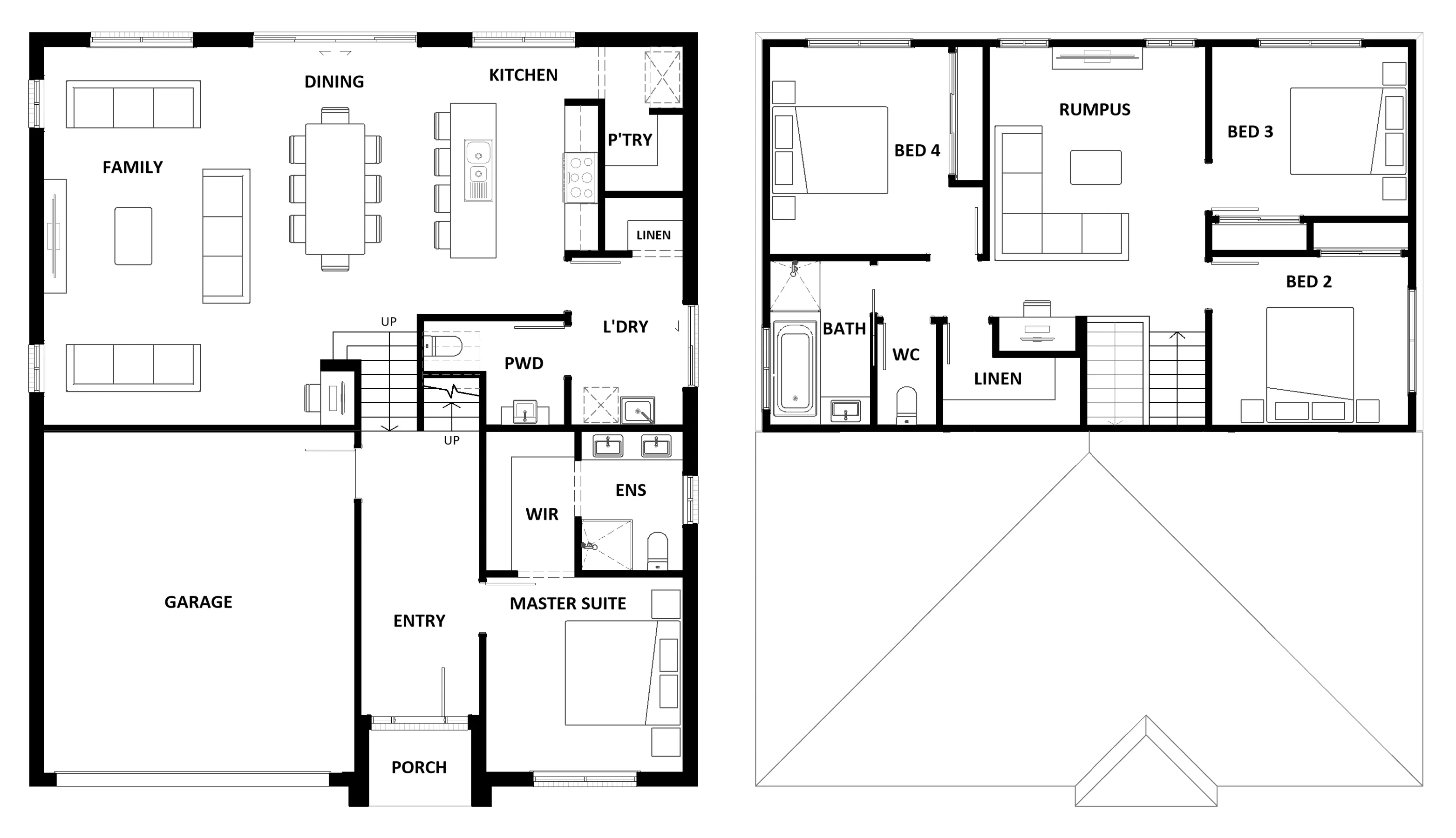
Perfect for sloping blocks, the Hillgrove 234 spans across multiple levels. Cleverly zoned, the master suite is located on the entry level away from the rest of the family. This parents’ oasis is complete with a walk-through robe and private ensuite with dual vanity. On the lower floor, the expansive open-plan kitchen, dining and family area is thoughtfully designed to make everyday living easy. The entertainer’s kitchen is complete with an island bench and large walk-in pantry. The central living hub also features a clever study nook and guest powder room. On the upper floor, the remaining three bedrooms surround a versatile rumpus space, perfect for growing children.
Area
Size
Residence
Garage
Alfresco
Porch
Total
House Width
House Length
Room
Width
Length
Master Suite
Bedroom 2
Bedroom 3
Bedroom 4
Family
Dining
Rumpus
Garage

Inclusions
Lyle Roennfeldt & Joshua Ray
With years of experience and a genuine passion for what they do, Lyle and Josh are the team to bring your dream home to life.






