Australian housing is changing fast. Multigenerational living is no longer the exception; it is becoming a practical and future-focused way to design a home.
Searches for dual living and dual income homes have increased significantly in recent years, according to realestate.com.au search trend data. Even more telling, terms like granny flats and dual living have moved from outside the top 20 real estate searches in 2023 to become among the top five most searched housing terms across Australia through 2026.
Rather than asking if dual occupancy is the right choice, many homeowners are now asking a different question: how do we design it properly?

Why Dual Occupancy Homes Are on the Rise
The growth in dual occupancy housing is being driven by both lifestyle and financial pressures. Traditional family homes in major cities such as Melbourne and Sydney typically deliver gross rental yields of around 3.0% to 3.5%, according to Domain rental yield data, while granny flats and secondary dwellings can significantly increase overall rental returns when designed well. This makes dual living significantly more profitable and highlights the long-term financial benefits of this housing model.
Changing household dynamics are also playing a role. Around 40% of young adults live with their parents or have returned home, according to Australian Institute of Family Studies research, driven largely by housing affordability and rental pressures. Research also shows that many young renters are experiencing housing stress, spending more than 30% of their income on housing. This has increased demand for more flexible living arrangements that keep families connected while still allowing independence for parents and adult children.
Demographic Shifts Supporting Multigenerational Floor Plans in Australia
Data from the Australian Bureau of Statistics shows that households containing multiple generations increased between the 2016 and 2021 Census periods, with continued growth through more recent housing cycles.
There are now more than 200,000 Australian households containing more than one family unit, according to national housing research, reflecting a growing shift toward multigenerational living. This is no longer a niche housing style. It is becoming part of mainstream residential design.
Designing for Multi-Generational Living
Well-designed multigenerational floor plans in Australia are all about balance and togetherness without compromise. The key is creating clearly defined separate living areas that still feel connected while allowing privacy and independence.
Key design features often include:
- Separate living zones with independent access
- Bedrooms and bathrooms positioned for privacy and noise separation
- Secondary kitchens or kitchenettes for flexible daily living
- Thoughtful storage and shared outdoor spaces that support multiple households
These layouts allow parents, adult children and ageing family members to live comfortably within the same home while maintaining their own routines and privacy.
Dual Living Duplex and Separate Dwellings
While duplex builds have their place, many families prefer dual living floor plans in Australia that sit under one roof or incorporate a self-contained granny flat. This approach allows households to accommodate multiple generations without subdividing land.
Depending on block size and local approvals, designs can include attached or detached separate dwellings, a rear or side wing with its own entrance or shared services with clear boundaries. Modern house designs make it easier to future proof your home without sacrificing street appeal or functionality.
This approach can be seen in the Isla 264 by Hotondo Homes. The design brings two independent living spaces together under one roof while maintaining privacy and functionality for both households.
The main residence includes three bedrooms, with an open plan kitchen, dining and family area located at the rear of the home. This space connects to an enclosed alfresco, supporting everyday living and year round entertaining.
The second residence is accessed via its own private entry and carport and is designed to operate independently. It includes a single bedroom with built in robe, a centrally located bathroom and an open plan kitchen, dining and family area that opens onto a private alfresco. This layout is well suited to ageing parents or independent family members.

The Rise of Reverse Occupancy
One of the fastest-growing trends for 2026 is reverse occupancy, a strategy increasingly discussed in the dual living market, where buyers live in the smaller dwelling and rent out the main home to help cover mortgage costs. This strategy maximises rental income while still delivering a long-term family asset particularly in growth corridors across Victoria, New South Wales and Queensland.

Dual Living Designs With Hotondo Homes
As experienced dual living builders, Hotondo Homes offers a wide range of carefully planned dual occupancy homes and duplex house designs that suit modern Australian lifestyles. These designs are created to maximise land use while delivering two high-quality homes that feel complete and well considered.
Hotondo Homes provides a selection of duplex home designs that support multigenerational living, provide long term rental income or adapt to changing family needs over time. You can explore the full range of duplex home designs from Hotondo Homes.
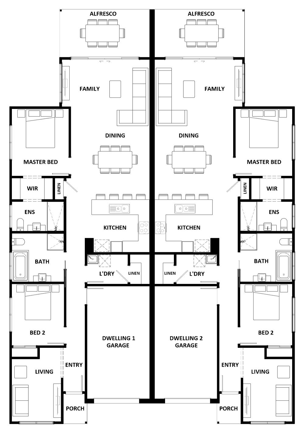
One of the most popular dual occupancy homes is the Ruby 298. This innovative mirrored duplex includes two complete residences, each featuring a single garage, two bedrooms and two living areas. A quiet front living room provides separation from the main living zone while private bedroom areas are positioned for comfort and privacy.
At the rear of each home, the open-plan kitchen, dining and family area creates a central living space that flows naturally to the alfresco. The master bedroom includes a walk-through robe and private ensuite making the Ruby 298 a smart option for families seeking flexibility without sacrificing functionality.

Designed for Today, Ready for Tomorrow
From accommodating extended family members to creating adaptable living arrangements, dual occupancy is no longer just an investment strategy — it is a lifestyle solution. With the right planning, thoughtful layouts and flexible options, dual occupancy home designs can evolve alongside your family delivering comfort, independence and security for decades to come.
If you are considering dual occupancy as an investment or a living opportunity speak with your local Hotondo Homes builder today to discuss your options and find the right design for your block.
